Telefon

Wohnfläche 173 qm
Die moderne und zeitlose Stadtvilla.
Sie möchten noch mehr über unsere mobile Variante des Wohnens wissen?
Dann schreiben Sie uns doch einfach eine E-Mail.
Wohnfläche
Wohnfläche EG
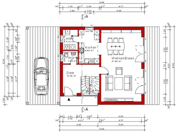
Diele 10,26 qm
Kochen 9,65 qm
Wohnen/Essen 41,68 qm
Gäste WC 2,59 qm
HWR 8,83 qm
gesamt Wfl. EG 73,01 qm
Wohnfläche OG
Empore 19,75 qm
Bad 12,53 qm
Eltern 19,06 qm
Ankleide 8,09 qm
Kind 1 20,29 qm
Kind 2 20,29 qm
gesamt Wfl. OG 100,01 qm
Besonderheiten
Preis
432.900 Euro inkl. Mwst.
Schlüsselfertig











